PROJET : «RUE BOUTIN» (VILLEURBANNE)

FICHE VIRTUELLE

FICHE IMPRIMABLE

Méthode de représentation :

La maquette numérique «Bim » de ce projet et ses plans furent construits et représentés avec le logiciel ARCHICAD.
Le rendu graphique a été calculé avec le logiciel TWINMOTION.

Descriptif :

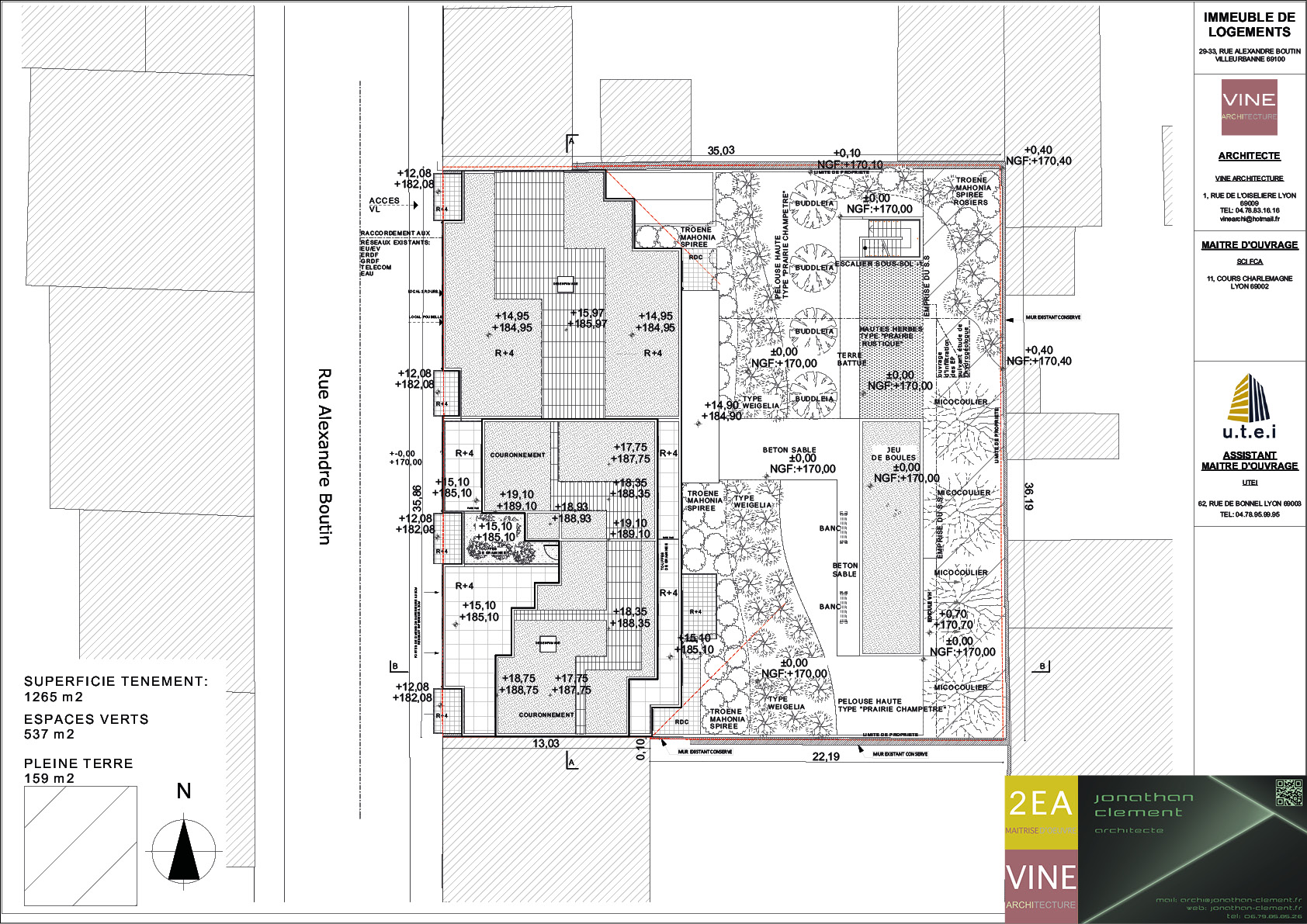
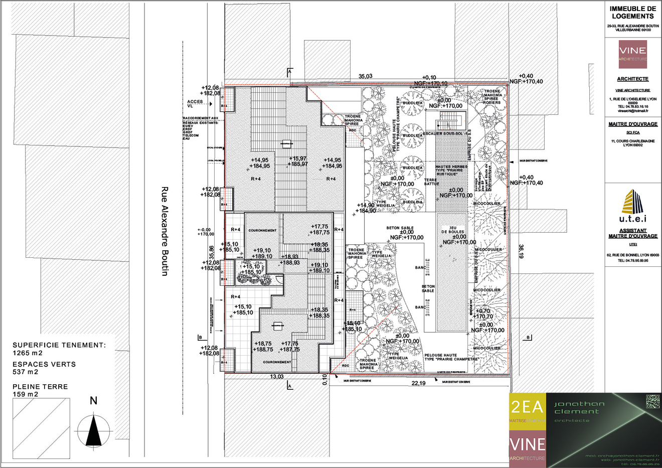
Le projet « RUE BOUTIN » contient 33 logements réalisés par la famille TARGE avec pour assistant à la maitrise d’ouvrage le promoteur UTEI.
Sur une surface totale de 2030 m² de SDP, le programme se compose d’un bâtiment collectif en r+4+attique.
Sa construction s’est terminée en 2019 et a nécessité deux ans de travaux.
Il est situé sur la commune de Villeurbanne.
Implication dans le projet :

- AVANT PROJET SOMMAIRE
- AVANT PROJET DEFFINITIF
- PERMIS DE CONSTRUIRE
Présentation du projet :

Le projet est distribué par 2 cages séparées par un passage traversant. L’ensemble de l'immeuble se déploie en R+4+couronnement pour permettre un meilleur raccordement aux mitoyens existants.
La façade sur rue s'inscrit de façon à accompagner cette lecture du front de rue fait de lignes d'égout discontinues et créant ainsi une séquence rythmée dans cette rue très linaire et relativement étroite. Elle est animée par trois séries de balcons verticaux qui provoquent des intrusions dans le volume principal. Le projet, ainsi perçu depuis la rue en perspective, permet de participer à cette discontinuité dans la ligne de crête tout en gardant une façade relativement frontale.

Le rdc est traité comme le socle de l’ensemble et bénéficiera d'une sur-hauteur afin de lui donner un peu d'ampleur et ainsi ne pas trop s'écarter des rdc avoisinants, dont la plupart se caractérisent par des grandes hauteurs. Il a pour vocation d’être une réinterprétation du passé industriel de la Ville de Villeurbanne dû à la forme de ses ouvertures. Le soubassement dispose d’un passage traversant qui engendre une percée visuelle sur le cœur d’îlot végétalisé et dessert les deux halls d’entrée. Il est également composé d’un local professionnel en pied d'immeuble. Le couronnement est traité comme deux maisons sur le toit.
La façade côté cour conserve une même sobriété. Elle possède un volume en extrusion qui vient s’accrocher sur cette façade lisse. Il est composé de balcons. La façade paraît donc beaucoup plus découpée, pour dégager des volumes à l’échelle des parcelles d'origine.

Le cœur d'îlot, même modeste, sera traité comme une courée enclavée telle qu'on la perçoit dans les îlots voisins. Pour cela, le projet d'aménagement vise à intégrer des éléments d'ordonnancement (cheminement, jeu de boules) associés à un aménagement diffus de la végétation. Ainsi, les séparatifs de jardin privatif seront intégrés au sein de haies diffuses, tant dans leur forme que dans leur essence. Le reste de la parcelle sera recouvert de plantes tapissantes faciles d'entretien au contour aléatoire servant de fond à l'implantation rectiligne du jeu de boules qui trouve un écho de l'autre côté du cheminement à travers un rectangle d'herbes hautes.