PROJET : «MAISON GOUD» (ANSE)

FICHE VIRTUELLE

FICHE IMPRIMABLE

Méthode de représentation :

La maquette numérique «Bim » de ce projet et ses plans furent construits et représentés avec le logiciel ARCHICAD.
Le rendu graphique a été calculé avec le logiciel TWINMOTION.

Descriptif :

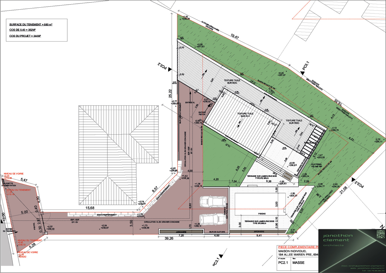
Le projet de la famille GOUD possède une surface totale de 149m² de SDP. Le programme repose sur une maison individuelle de type T5 et une piscine.
Sa construction s’est terminée en 2022 et a nécessité un an de travaux.
Il est situé sur la commune de Anse au nord de l’agglomération Lyonnaise.
Le tènement possède un dénivelé d’environ 4m dans le sens l’ouest.

Implication dans le projet :

- ESSQUISSE
- AVANT PROJET SOMMAIRE
- AVANT PROJET DEFFINITIF
- PERMIS DE CONSTRUIRE
L’implantation de la construction est dictée par trois axes majeurs :

- la gestion de la pente
- la gestion des vis-à-vis par rapport à la maison d’origine du tènement
- la qualité des vues et des volumes de la future maison

Le projet est constitué d’un sous-sol semi-enterré. Celui-ci crée un socle pour la super structure qui accueille une première terrasse orientée vers les deux vues majeures à l’ouest et au sud. Cette terrasse est accompagnée de deux terrasses supplémentaires implantées en cascade afin d’épouser la pente du terrain. La terrasse la plus en contre bas possède une piscine et un pool house. Ce dernier est disposé de façon parallèle à la maison existante. Le pool house est le support de la voirie supérieure qui sert de parking extérieur et d’aire de retournement.
Au nord, la maison se développe suivant l’orientation ouest-est avec une volumétrie qui joue sur les intrusions-extrusions ; Elle est couverte par des toitures tuile. Les deux tiers de la maison sont en rez-de-chaussée avec de larges ouvertures sur la terrasse. Le R+1 est un volume en édicule qui prend place en symétrie du rez-de-chaussée. L’implantation globale de la maison est régie par la volonté d’obstruer au minimum la vue du tènement ouest.