PROJET : «LA VIE EN VERT» (ST PRIEST)

FICHE VIRTUELLE

FICHE IMPRIMABLE

Méthode de représentation :

La maquette numérique «Bim » de ce projet et ses plans furent construits et représentés avec le logiciel ARCHICAD.
Le rendu graphique a été calculé avec le logiciel TWINMOTION(PATH TRACER).

Descriptif :

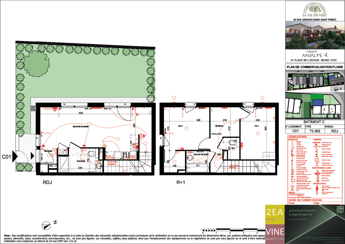
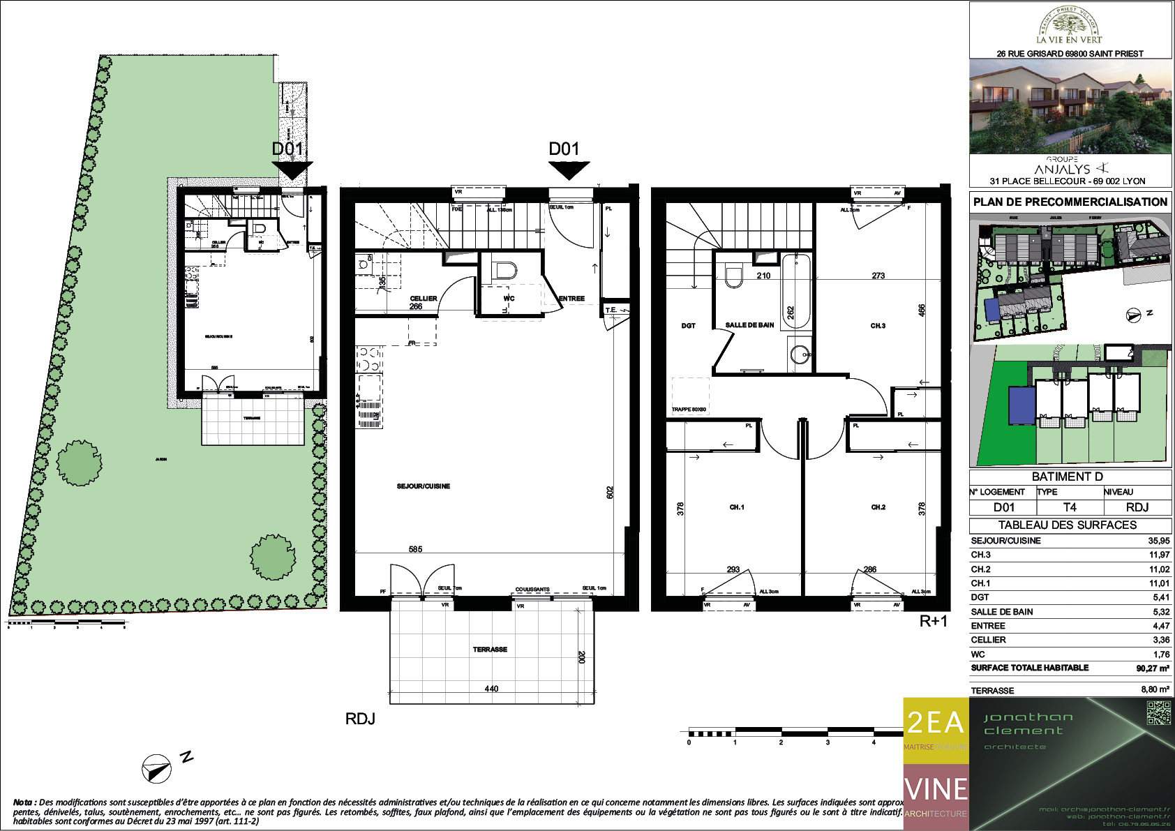
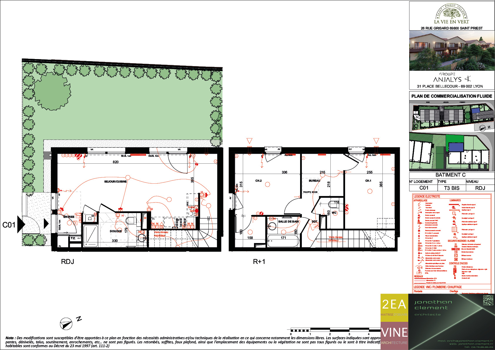
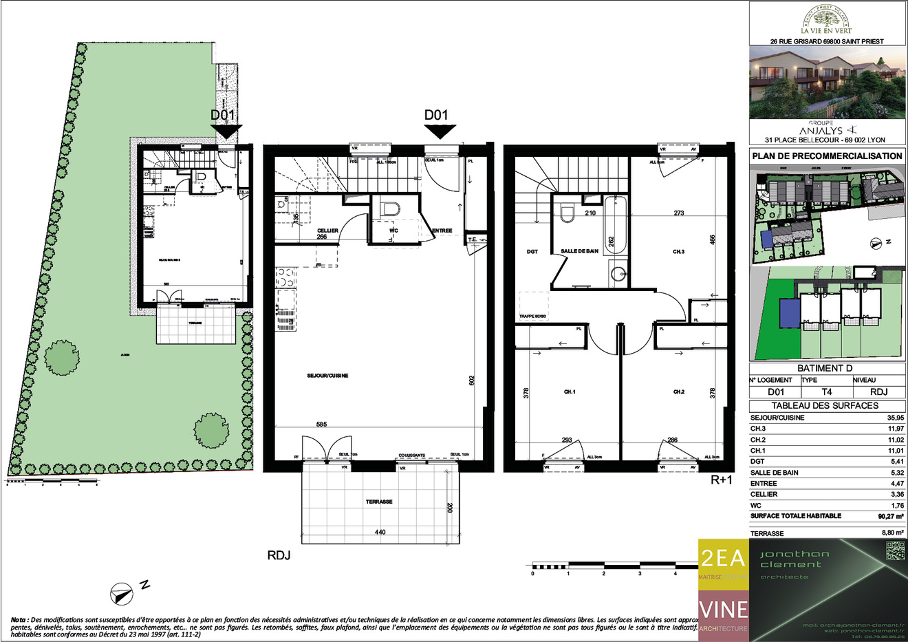
Le projet « LA VIE EN VERT » contient 31 logements. Il est réalisé par le promoteur ANJALYS immobilier.
Sur une surface totale de 1700m² de SDP, le programme est composé d’un type d’habitat collectif ainsi que de deux bâtiments individuels groupés.
Sa construction est en cours.
Il est situé sur la commune de SAINT PRIEST à l’est de l’agglomération Lyonnaise.

Implication dans le projet :

- DOSSIER CONSULTATION DES ENTREPRISES
- PLAN DE COMMERCIALISATION
- PLANS MARCHE
-TABLEAU MODIFICATIF ACQUEREUR
- MAITRISE D’ŒUVRE
- DOSSIER DES OUVRAGES EXECUTES

Présentation du projet :

Le concept du projet est de réaliser des habitations collectives qui rappellent les logements individuels afin de s’intégrer au maximum à la densité et au quarter existant, soit des habitats intermédiaires.
Pour cela chaque logement à un accès direct sur l’extérieur.
Il y a quatre volumes de logements :
Le bâtiment A au sud de la parcelle,
Le bâtiment B au milieu de la parcelle
Le bâtiment C le long de la rue Grisard au Nord de la parcelle. Tous les trois ont des formes semblables, en ayant chacun des vues et des orientations différentes.
Le bâtiment D est situé, lui, à l’arrière du bâtiment A.
Le Bâtiment A et B sont reliés par une zone de circulation, animant la façade Ouest et permettant de desservir les logements au R+1 et aux espaces de stationnement en sous-sol.
Le parti architectural a été de venir s’aligner parallèlement à la rue Jules Ferry et en limite de la rue Grisard conformément à la trame urbaine dominante, un jeu de miroir morcelé avec les bâtiments en R+3 et R+4 en face de la rue grisard.
Il y a une volonté de scinder le volume des logements en trois afin de recréer des morphologies proches du bâtiment existant démoli et du bâtiment d’intérêt patrimonial. Cette solution nous permet également d’apporter luminosité et respiration entre les logements, de créer des espaces de transitons communs différents et de garantir des doubles orientations aux logements. Le BATIMENT D reprend la morphologie du bâtiment existant type grange.