PROJET : «L'ECRIN» (ST GENIE LAVAL)

FICHE VIRTUELLE

FICHE IMPRIMABLE

Méthode de représentation :

La maquette numérique «Bim » de ce projet et ses plans furent construits et représentés avec le logiciel ARCHICAD.
Le rendu à été réalisé avec le logiciel bim-motion

Descriptif :

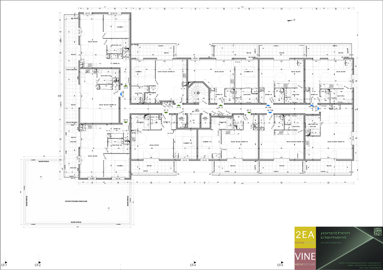
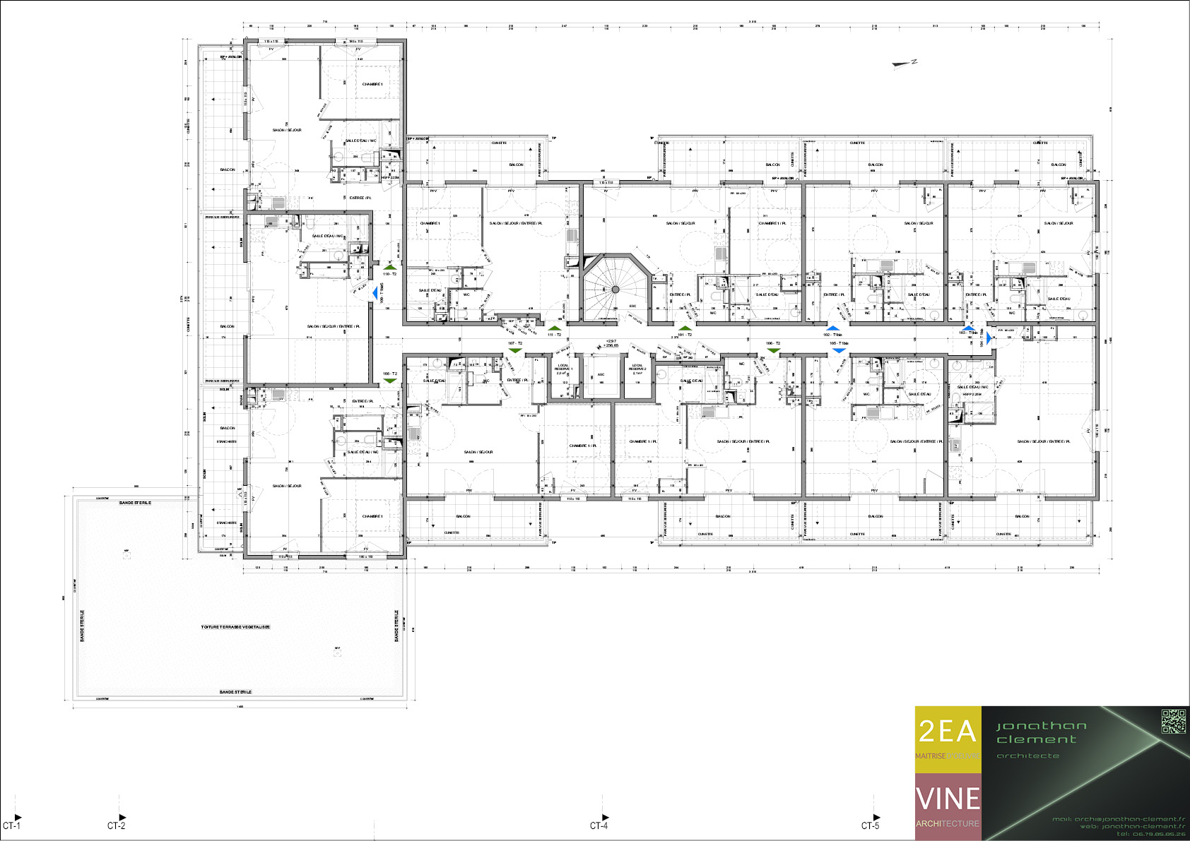
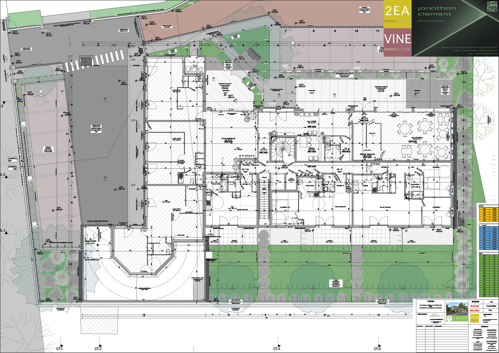
Le projet « L’ECRIN » comporte 35 logements. Il a été réalisé par le promoteur ANJALYS immobilier.
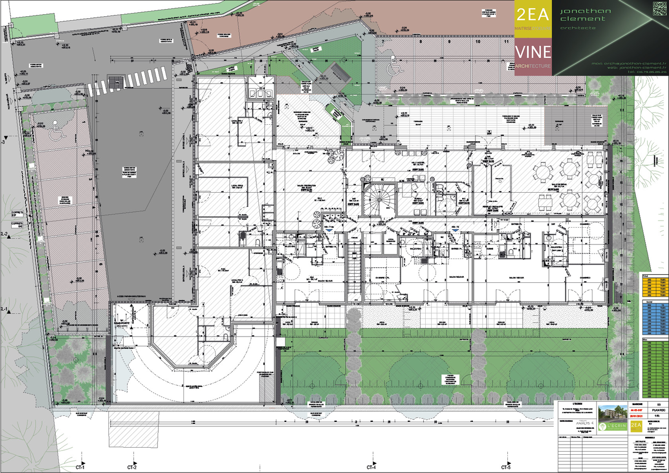
Sur une surface totale de 2475m² de SDP, le programme se compose d’un type d’habitat collectif et d’espaces communs au RDC et de 3 commerces.
Sa construction s’est terminée en 2021 et a nécessité deux ans de travaux.
Il est situé sur la commune de SAINT GENIS LAVAL au sud de l’agglomération Lyonnaise.

Implication dans le projet :

- DOSSIER CONSULTATION DES ENTREPRISES
- PLAN DE COMMERCIALISATION
- PLANS MARCHE
-TABLEAU MODIFICATIF ACQUEREUR
- MAITRISE D’ŒUVRE
- DOSSIER DES OUVRAGES EXECUTES

Présentation du projet :

Au cœur d’une superbe propriété familiale où sont implantées 2 authentiques demeures, le terrain siège du projet se situe au Nord du bourg de St Genis Laval tout proche de la départementale qui rejoint la commune d’Oullins.
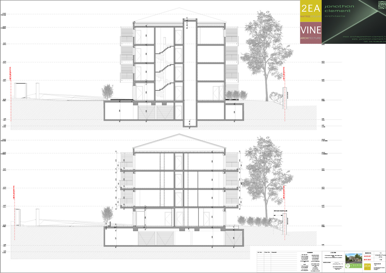
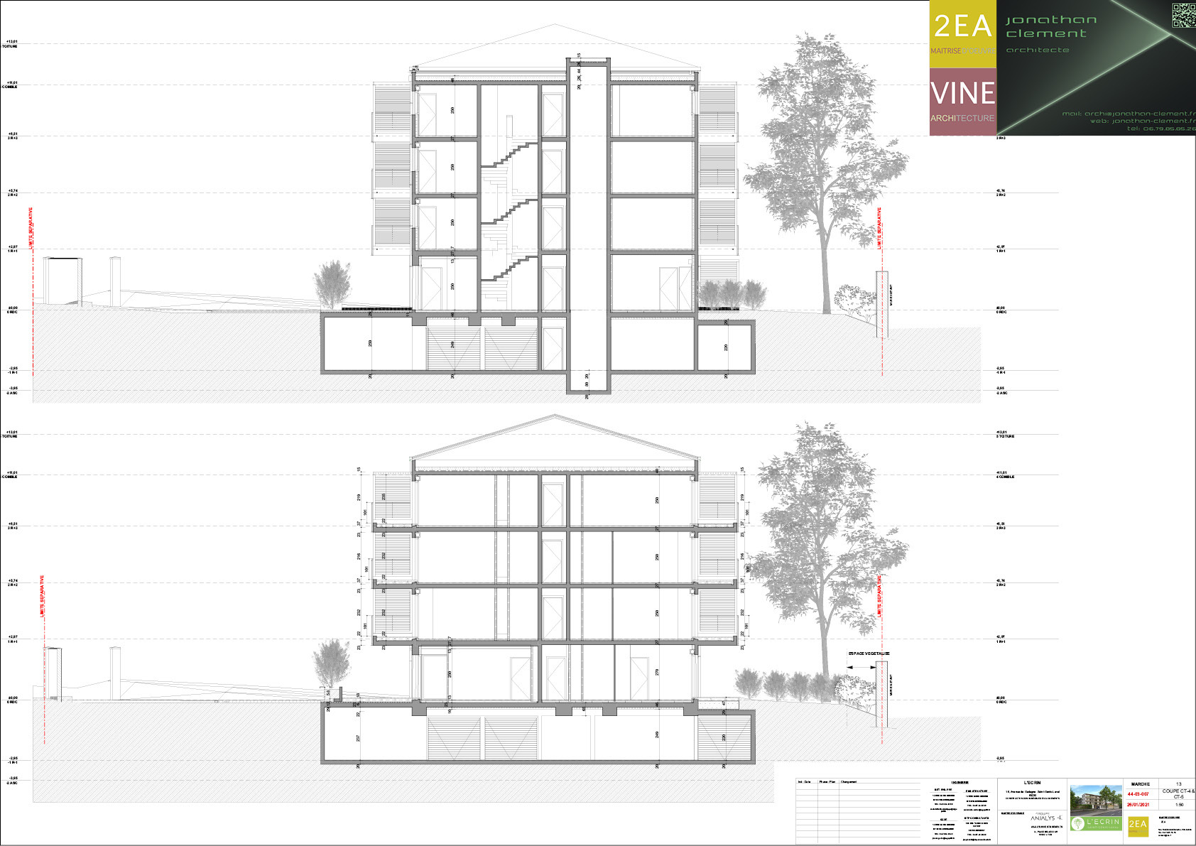
La forme de la construction est simple et compacte (11 logements par niveaux), permettant l’alternance de masses bâties et de masses végétales à l'image des constructions d’ores et déjà implantées sur le tènement.
Chaque logement possède une terrasse, ou un jardinet pour les logements en RDC, orientés au Sud, à l’Est ou à l'Ouest de sorte à offrir un réel confort de vie à ses occupants.
L'architecture se veut volontairement sobre et basé sur un visuel de balcons.
- Les toitures 4 pans, traditionnelles recouvertes de tuiles alternent avec les toitures terrasses conférant au bâtiment rythme, élégance et allure.
- Un vocabulaire plus contemporain est utilisé en parallèle de cette recherche d’intégration, pergola sur les logements du dernier niveau, contraste de teintes et de matériaux, garde-corps en aluminium thermolaqué et découpés.

Les Espaces verts :

Les espaces libres de plantations représentent une surface totale de plus de 8 000 m2 sur la propriété. Ces généreux espaces plantés et engazonnés participent à la qualité environnementale du projet et au bien-être des habitants. ( voir dossier d’aménagement paysagé joint ).