PROJET : "LE PONT DE BRIGNEUX" (ANSE 69)

FICHE VIRTUELLE

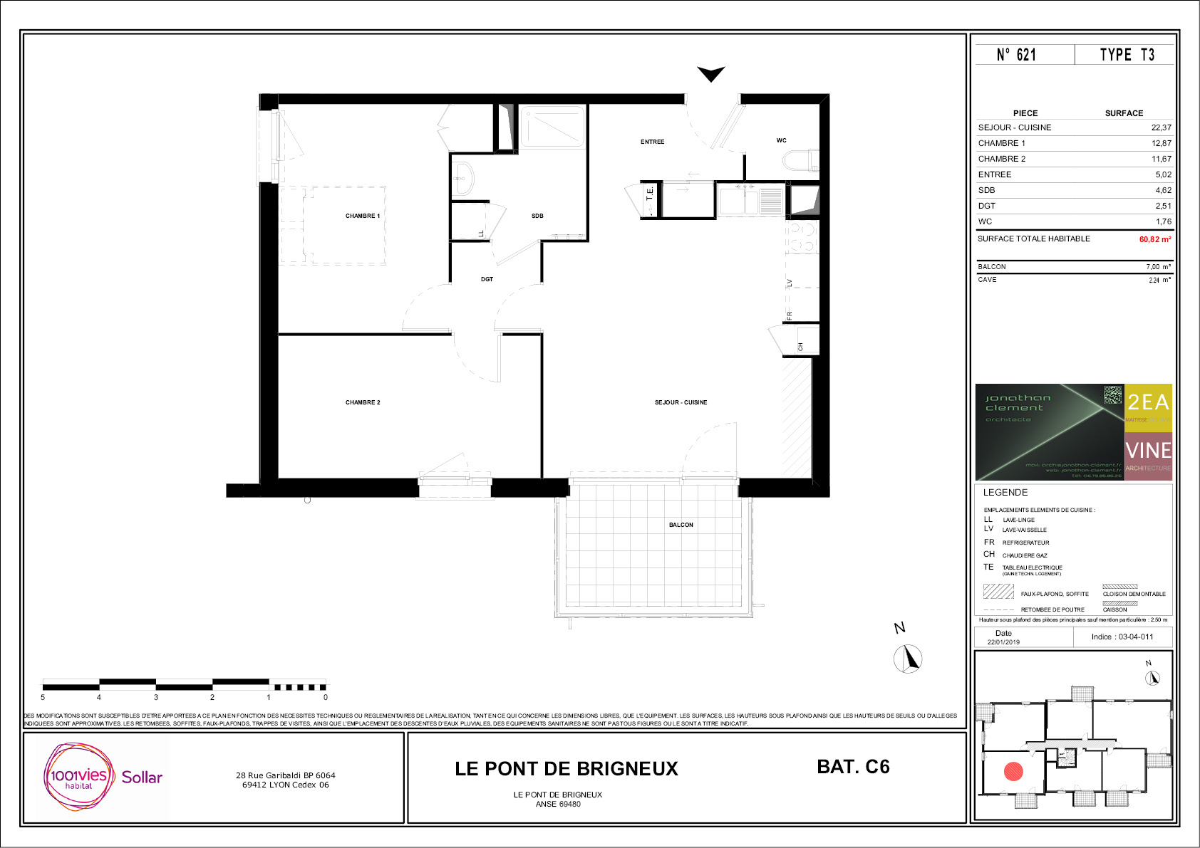
FICHE IMPRIMABLE

Méthode de représentation :

La maquette numérique «Bim » de ce projet et ses plans furent construits et représentés avec le logiciel ARCHICAD. Le rendu graphique a été calculé avec le logiciel TWINMOTION

Descriptif :

Le projet « le Pont de Brigneux » est composé de 196 logements (164 logements sociaux et 32 accessions) réalisé par le promoteur COVEBAT.
Sur une surface totale de 13770m² de SDP, le programme est composé d’un type d’habitat collectif, individuel groupé et d’un habitat individuel.
Sa construction s’est terminée en 2020 et a nécessité deux ans de travaux.
Il est situé sur la commune de Anse au nord de l’agglomération Lyonnaise. Le tènement possède un dénivelé d’environ 6m dans le sens ouest-est.

Implication dans le projet :

- AVANT PROJET DEFFINITIF
- PERMIS DE CONSTRUIRE
- DOSSIER CONSULTATION DES ENTREPRISES
- PLAN DE COMMERCIALISATION
- PLANS MARCHE
-TABLEAU MODIFICATIF ACQUEREUR
- MAITRISE D’ŒUVRE
- DOSSIER DES OUVRAGES EXECUTES

Présentation du projet :
L’habitat collectif s’organise en R+2 sur la partie aval à l’Est du tènement. L’ensemble des collectifs s’organise en “éventail“, faîtage dans le sens de la pente. Cette organisation ménage les transparences Est-Ouest et minimise l’exposition aux maisons déjà existantes au nord.
L’habitat individuel groupé et les maisons individuelles s’organisent en R+1 sur les courbes de niveau à mi pente et en amont du tènement.
Celui-ci s’inscrit dans un périmètre d’Orientation d’Aménagement et d’une étude sur la loi sur l’eau. - Au sud, un traitement végétal (bande de 10 m) en haie arbustive et arbres de haute tige a été réalisé. - En limite Sud et Ouest, une haie bocagère et un recul de 6 m sont assurés.
- En limite Nord, un cheminement doux et une bande végétale de 8 m minimum (essences locales, strate arbustive) sont implantés.

Les espaces libres :

Les plantations s’organisent suivant un axe Nord-Sud et un axe Est-Ouest.
- Axe Nord-Sud :

Au sud, une bande de 10m en haie arbustive et arbres de haute tige a été réalisée. Cet espace participe aussi à la gestion des eaux pluviales par la mise en œuvre de bassins de rétentions-infiltration. Il permet une mise à distance des bâtis et de la route nationale qui bordent le tènement. Au 2/3 de la pente : Une zone végétalisée a été aménagée en “jardin de pluie“. C’est un espace collectif qui comprend un cheminement doux, des dispositifs de rétentions infiltrations végétalisés. En amont : une haie bocagère et un recul de 6 m sont assurés pour la réalisation des jardins individuels des maisons privatives.

- Axe Est-Ouest :

En limite Nord : un cheminement doux et une bande végétale de 8 m sont implantés pour assurer la mise à distance entre les pavillons existants voisins et les collectifs (R+2).
En partie centrale : Un “axe vert“ structure, fédère et décloisonne les différents éléments du programme.
Le cheminement piéton assure un mode de déplacement doux. Les jardins en gradin favorisent les échanges et la communication entre les habitants. C’est aussi l’occasion d’une large transparence visuelle Est-Ouest.
La trame viaire interne adopte le principe d’une distribution périphérique du tènement. Une voie intermédiaire à mi pente, assure le désenclavement de la zone centrale.
Cette trame assure aussi la distribution de stationnements complémentaires à ceux prévus en sous-sol ou en garages de surface.
Au droit de l’accès Nord, en bordure du tènement, est implantée une large place ombragée tandis qu’au cœur du tènement deux placettes plus intimes sont aménagées.
L’accès au tènement est assuré depuis la nationale par deux giratoires.